CENTRO AVANZADO DE FORMACION POSTGRADO/PITAGORAS ARQUITECTOS
Por: Karina Duque
La imagen de la “Zona de Couros” se caracteriza por edificios abandonados o transformados, también de recuerdos, a veces imaginarios y subjetivos, que la gente ha desarrollado a partir de los fragmentos que han llegado a nuestros días. A partir de esos fragmentos podemos conservar tanques de tratamiento de cueros que podemos encontrar en este área, los edificios y estructuras en madera y, naturalmente, el pequeño río que fue la razón para la instalación de esta actividad (tratamiento de pieles) en esta área.
Importaba desde el inicio del proceso del proyecto la ubicación del edificio en la “Zona de Couros”, un área que ha sufrido cierta segregación del núcleo urbano adyacente amurallado del centro histórico de Guimarães, pero sedimentado de soluciones ricas y autónomas y construcciones de naves industriales que en conjunto tienen un innegable interés arquitectónico, e inmediatamente proporcionando algunos temas para la reflexión y el desarrollo.
Uno de esos complejos son los edificios que fueron ocupados por la antigua fábrica “Freitas & Fernandes”. No vamos a hacer referencia a un solo edificio, sino a un conjunto de construcciones dispuestas en torno a un gran patio, que en gran medida han sido testigo de los acontecimientos sucesivos que dieron forma “Zona de Couros” como la conocemos hoy en día. Una parte de esos edificios está rehabilitada con la instalación de CAFPG. Los edificios destinados a CAFPG – UM, están situados al oeste del patio interior grande, y fueron los que sucesivamente se han adaptado a las necesidades de la producción textil, y que presentan un estado de conservación muy desigual. El área ahora ocupada por los edificios CAFPG se había vuelto muy transformada, ya sea alterada de manera constructiva (mediante la introducción de estructuras de hormigón armado y paredes de ladrillo) o espacialmente (mediante la introducción de nuevos niveles y acceso), lo que hacía prácticamente imposible la aprehensión de su original estado.
El programa elegido con el proyecto se materializó puede resumirse, con franqueza, como un edificio escolar para la Universidad de Minho centrado en la formación de maestría y doctorado y distinguido de otras unidades de la misma institución, por los espacios de investigación que ocupan el primer nivel, y porque se encuentra fuera de la escuela y en el centro de la ciudad.
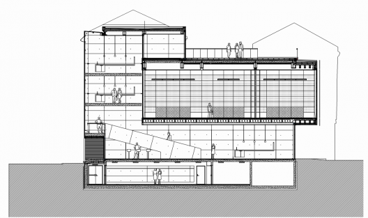
El edificio tiene dos pisos y techos con áreas reservadas para uso como áreas técnicas. La planta baja alberga las zonas de estar por encima de una doble altura, áreas pedagógicas (aulas) y el área administrativa. En el primer piso se encuentran las oficinas, los laboratorios y las salas de actividades, además de la biblioteca que está conectada con las áreas sociales en busca de un lugar más reservado y adecuado a su función. Las áreas de circulación tienen una geometría irregular para dar espacio al denominado “laboratorio viviente” y éstos, en primer lugar estarán representando las áreas de los proyectos académicos actuales.
Los edificios y el lugar del programa entrega un dilema de proyecto, que en primer lugar, la realidad de un edificio muy desfigurado y poco atractivo, y después, las expectativas existentes en su recuperación y rehabilitación. A la pregunta de cuál sería la actitud adecuada a las expectativas de recuperación incorporadas, respondimos con una propuesta para un proyecto con opciones de flexibilidad mayor. Evitamos un enfoque rígido en la intervención y la aplicación, y se utilizó una respuesta pragmática y detallada a cada una de las ecuaciones y problemas que enfrenta el proyecto. Desconociendo de la realidad del edificio original, todo tendría que ir a través de su reinvención utilizando imágenes esquemáticas despejadas de su contenido concreto.
En general, hemos propuesto la demolición de todas las áreas en las que queríamos una sustitución de soluciones originales constructivas para muros de ladrillo, y la demolición completa de las estructuras existentes de hormigón armado, y paradójicamente también proponiendo como principio fundamental el mantenimiento de la volumetría como un repositorio esencial de la memoria del edificio existente
Esta es la paradoja del proyecto, la reinvención del edificio manteniendo inalterada su volumetría, utilizando sus elementos de definición externa que caracterizan a la “Zona de Couros”, con madera y acabados de granito, o incluso con el uso de sistemas de construcción ligera, al proponer que el acabado de cooper cubra una parte significativa del edificio. Al mismo tiempo, se propone la reconstrucción completa de los interiores con materiales contemporáneos con el fin de acomodar y dar respuesta a las demandas de confort impuestas por la normativa.
El proyecto de paisajismo se limitaba a un pequeño patio formado por los edificios sujetos de intervención y propusimos más allá de la losa de granito dominante en las rutas y puntos de acceso, la introducción oportuna de pequeñas zonas verdes y un pavimento del ladrillo con el fin de garantizar la intimidad de estos espacios con un diseño minimalista que fortalezca la presencia de la chimenea de ladrillo industrial.
Arquitectos: Pitagoras Arquitectos
Ubicación: Guimarães, Portugal
Arquitectos: Fernando Seara De Sá, Raul Roque Figueiredo, Alexandre Coelho Lima, Manuel Vilhena Roque
Colaboradores: Marlene Sousa, Mariana Paiva, Carla Guimarães, Francisco Oliveira, Hélio Pinto
Año Proyecto: 2009
Fotografías: José Campos
Ubicación: Guimarães, Portugal
Arquitectos: Fernando Seara De Sá, Raul Roque Figueiredo, Alexandre Coelho Lima, Manuel Vilhena Roque
Colaboradores: Marlene Sousa, Mariana Paiva, Carla Guimarães, Francisco Oliveira, Hélio Pinto
Año Proyecto: 2009
Fotografías: José Campos

















